Štajerska občina načrtuje vrtec, za katerega bodo starši stali v vrsti: Zelena prehodna streha in pogled na jezero

| v Lokalno

V Sveti Trojici načrtujejo gradnjo novega vrtca, ki pa bo eden najmodernejših v Sloveniji.

Na občini Sveta Trojica v Slovenskih goricah ugotavljajo, da morajo zaradi vedno večjega števila otrok nujno zagotoviti nov vrtec. Tako bodo lahko zagotovili ustrezno izvajanje vzgojno-izobraževalnega in vzgojno-varstvenega procesa. 

Gradnjo novega vrtca pa so si zamislili zelo smelo - načrtujejo namreč enega najmodernejših vrtcev v Sloveniji. 

Večji del zneska bo pokrilo ministrstvo

Investicija je ocenjena na nekaj čez dva milijona evrov z vključenim davkom. Občina bo sfinancirala 862.332 evrov, ministrstvo za izobraževanje, znanost in šport pa bo primaknilo 1.172.667 evrov.

Celotna investicija bo izvedena do leta 2024. Občina računa, da bodo lahko prvo lopato zasadili že leta 2023, je za Ptujinfo razkrila Darja Slivnjak, direktorica občinske uprave. 

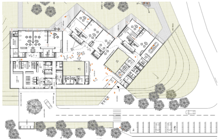
Pogled na jezero, terase kot igralnice na prostem, streha pa prehodna

Načrtovan vrtec ima prav posebno zasnovo. Je pritličen, z desetimi igralnicami. Igralnice bodo na vzhodnem delu objekta, saj bo tako zagotovljena osončenost v različnih delih dneva, odpirali se bodo novi pogledi, otroci pa bodo uporabljali tudi igralnice na prostem. 

Najmlajši bodo svoje otroške dni tako preživljali v vrtcu, ki bo nudil odprt pogled na jezero in vzpetini ter cerkev Svete Trojice.

Orientacijo vrtca so določili zaradi zahteve po optimalni osvetljenosti igralnic, ki bodo v uporabi predvsem dopoldne in zgodaj popoldne. 

Posebna pa je tudi zasnova strehe, ki bo ozelenjena, prehodna in celo javno dostopna. Otroci pa bodo imeli pred igralnicami pritličja pod nadstreškom na razpolago osem teras v velikosti 24 kvadratnih metrov.

Prostor bo razdeljen na osem igralnic ter športno igralnico in večnamenski osrednji prostor, sanitarije in garderobe, shrambe za igrala in opremo, gospodarske prostore s kuhinjo in centralno pralnico ter prostore za strokovne delavce. 

Otrokom bo tako zagotovljenih 3344 kvadratnih metrov zunanjih zelenih in tlakovanih igralnih površin, ki bodo ograjene, sprejeli pa bodo lahko do 220 otrok

Preberite še

Komentarji

Danvid

Koj ko še vsaj ti lejnačani ne bi imelu tako nagravžnega naglasa.

kr tak

sploh ob porastu kosovskih družin v občini morajo povečat kapacitete

PuklastiVanč

Sveta Trojica? Jezero, ki je v biti pol metra globok ribnik? In vzgojiteljice domačinke ... smo že v vrsti!

marjanpenzionist

Samo za pozdravit in da se to tud uresniči. Nergači, zadržite se rajši

Štajerc7

Čestitke snovalcem na inovativni ideji. Bom pa presenečen, v kolikor se bo investicija izvedla v okviru ocene 250.000 €/oddelku, kar ni majhen denar. Slovenija je zanesljivo rekorder po nesmiselno vloženih sredstvih po oddelku vrtca. Ne me razumet, da sem proti gradnji vrtcev, vendar bi jih za porabljen denar lahko zgradili najmanj enkrat več.

Komentarji

Danvid

Koj ko še vsaj ti lejnačani ne bi imelu tako nagravžnega naglasa.

kr tak

sploh ob porastu kosovskih družin v občini morajo povečat kapacitete

PuklastiVanč

Sveta Trojica? Jezero, ki je v biti pol metra globok ribnik? In vzgojiteljice domačinke ... smo že v vrsti!

marjanpenzionist

Samo za pozdravit in da se to tud uresniči. Nergači, zadržite se rajši

Štajerc7

Čestitke snovalcem na inovativni ideji. Bom pa presenečen, v kolikor se bo investicija izvedla v okviru ocene 250.000 €/oddelku, kar ni majhen denar. Slovenija je zanesljivo rekorder po nesmiselno vloženih sredstvih po oddelku vrtca. Ne me razumet, da sem proti gradnji vrtcev, vendar bi jih za porabljen denar lahko zgradili najmanj enkrat več.

Lokalno

Vse v Lokalno

Šport

Vse v Šport

Politika

Gospodarstvo

Slovenija

Scena

Svet

Vse v Svet

Kronika

Vse v Kronika

Kultura

Vse v Kultura