V središču Maribora nastaja butični hostel

| v Lokalno

Hostel, namenjen študentom, nastaja v neposredni bližini tehniške fakultete.

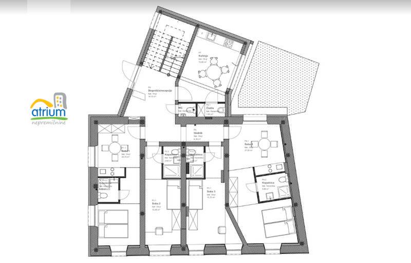
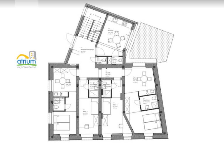
V Mariboru, v neposredni bližini Fakultete za elektrotehniko, računalništvo in informatiko, nastaja tako imenovani butični hostel, namenjen študentom. V celoti prenovljena hiša je sestavljena iz treh nadstropij. V pritličju se nahaja skupna kuhinja, jedilnica in stranišče, sobe pa se nahajajo tako v pritličju kot prvem nadstropju. V kleti je na voljo tudi fitnes, zunaj pa se bo možno sprehoditi ob vrtu. 

Študentje lahko tako najamejo enoposteljno, dvoposteljno ali pa štiriposteljno sobo, vsaka pa je opremljena tudi s pripadajočo kopalnico, medtem ko je pri dvoposteljnih sobah možna tudi mini kuhinja z jedilnico.

Cena najema je od 110 do 170 evrov, mesečni stroški, ki so fiksni, pa znašajo 50 evrov. Ogledi so možno od 26. avgusta, vselitev pa po 15. septembru. Možne so tudi predhodne rezervacije.

Okna so v celoti zamenjana, dodana pa je tudi toplotna izolacija zunanjih sten, tal in stropov ter talno gretje. Vgrajeni so sprejemniki sončne energije, energijsko učinkovit sistem razsvetljave, sončna elektrarna, prezračevalnik z vračanjem toplote odpadnega zraka. 

Za čiščenje skupnih prostorov je poskrbljeno, z doplačilom pa je možnost najeti tudi čiščenje sobe. Pralni stroj se bo nahajal v skupni kuhinji. 

Nepremičninska agencija Atrium nepremičnine tako na svoji strani obljublja »najvišje bivalno ugodje«.

Preberite še

Komentarji

TilenA

Če ga najemeš za mesec dni, to ni hostel, ampak študentski dom :D

Komentarji

TilenA

Če ga najemeš za mesec dni, to ni hostel, ampak študentski dom :D

Lokalno

Vse v Lokalno

Šport

Vse v Šport

Politika

Gospodarstvo

Slovenija

Scena

Svet

Vse v Svet

Kronika

Vse v Kronika

Kultura

Vse v Kultura